【和モダン屋上付き住宅】長谷1丁目新築ガレージハウス 全1棟

  • SOLD OUT
長谷一丁目, 鎌倉市, 神奈川県, 248-0016, 日本

【和モダン屋上付き住宅】長谷1丁目新築ガレージハウス 全1棟

長谷一丁目, 鎌倉市, 神奈川県, 248-0016, 日本
  • SOLD OUT

360°WEB内覧・内見

物件のご紹介

所在地:鎌倉市長谷一丁目
交通:江ノ島電鉄線「由比ヶ浜」駅徒歩3分
   JR横須賀線「鎌倉」駅徒歩16分
   江ノ島電鉄線「長谷」駅徒歩8分
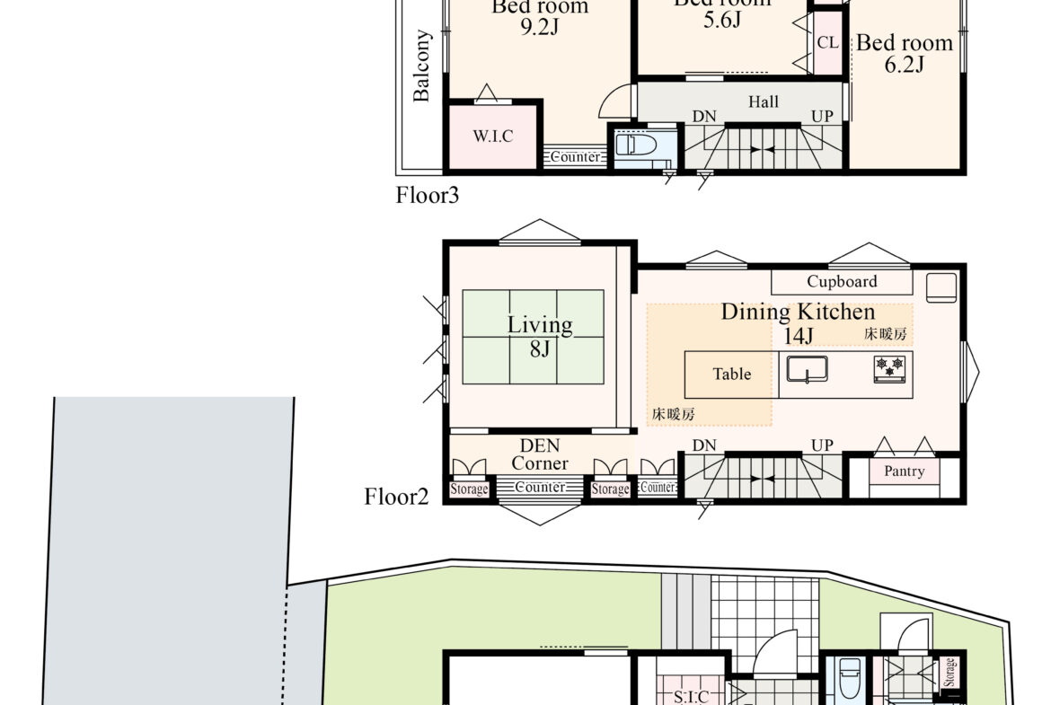
土地面積:96.65㎡ 建物面積:154.10㎡(うち1階車庫24.79㎡)
間取り:3LDK(リビング8帖 / ダイニングキッチン14帖 / 居室①9.2帖 / 居室②5.6帖 / 居室③6.2帖)
完成時期:2023年8月完成済
カースペース:1台駐車可
公共設備:公営水道、公共下水、都市ガス


【海や山の豊かな自然環境に恵まれた屋上付きガレージハウス】

メイン通りから一本中に入った立地なので静かな環境です。
電動シャッター付きガレージは24.79m2の広さがあり、愛車を傷や塩害から守ります。
造り付の棚も設けているので、趣味のスペースとしてもご利用いただけます。

デッキを敷いた屋上ルーフバルコニーは11帖の広さがあります。
自然に囲まれながら、のんびりとBBQやプールをお楽しみ下さい。


■グラフテクト製アイランドキッチン
■リビングダイニング床暖房
■個室ワークスペース
■収納豊富(各室収納完備、WIC、SIC)
■GVA製制震ダンパー搭載!地震による揺れの負担を50%超軽減

鎌倉の由緒ある歴史的遺産を堪能でき、海や山の豊かな自然に恵まれた魅力的な環境。
周辺には商業施設などが整っているので生活便利です。
鎌倉駅まで平坦徒歩圏なので、都内へのアクセスも良好です。


CONCEPT BOOK ダウンロード
SPEC BOOK ダウンロード


ご見学をご希望の際は、ご都合の良い日時及びお待ち合わせ場所をお知らせください。
現地でのお待ち合わせや最寄駅までの送迎もご対応しております。


【周辺環境】
CIAL鎌倉 徒歩19分(1500m)
やまか鎌倉店 徒歩13分(1000m)
東急ストア鎌倉店 徒歩18分(1400m)
ファミリーマート鎌倉長谷店 徒歩2分(140m)
セブンイレブン鎌倉観音前店 徒歩4分(280m)
ローソン鎌倉由比ガ浜大通り店 徒歩5分(400m)
クリエイトエス・ディー鎌倉材木座店 徒歩14分(1100m)
鎌倉市立第一小学校 徒歩12分(900m)
鎌倉市立御成中学校 徒歩10分(800m)
鎌倉市由比ガ浜保育園 徒歩4分(270m)
財団法人鎌倉病院 徒歩9分(700m)
鎌倉市役所 徒歩17分(1300m)
鎌倉市中央図書館 徒歩11分(850m)
由比ヶ浜海岸 徒歩9分(700m)

  • 住所 鎌倉市長谷一丁目

物件詳細

更新日 12月 25, 2025 1:40 pm
  • 価格: SOLD OUT
  • 物件種類: 新築戸建
  • 間取り: 3LDK
  • 完成時期(築年月): 2023年8月
  • 階数: 地上3階
  • 建物面積: 154.10㎡(うち1階車庫24.79㎡)
  • 土地面積: 96.65㎡
  • 総戸数: 1
  • 交通: 江ノ島電鉄線「由比ヶ浜」駅徒歩3分
  • 建物構造: 木造
  • 主要採光面 :
  • 都市計画: 市街化区域
  • 土地権利: 所有権
  • 接道状況: 北側4m公道
  • 地目: 宅地
  • 用途地域: 第一種中高層住居専用地域
  • 引渡: 即可
  • 現況: 完成済
  • 国土法届出: 不要
  • 取引形態: 仲介
  • 容積率: 150%
  • 建ぺい率: 60%

資料請求(無料)

センチュリー21富士リアルティ
  • センチュリー21富士リアルティ
  • 0458630166

資料請求・お問い合わせ

Compare listings

比較
センチュリー21富士リアルティ
  • センチュリー21富士リアルティ